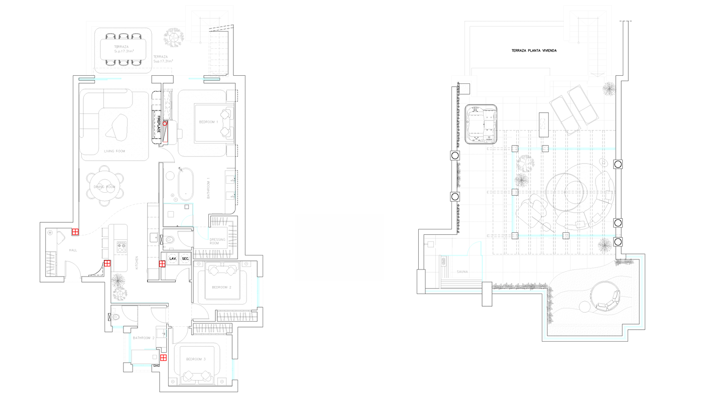
Bahía del Velerín es una lujosa comunidad situada entre Marbella y Estepona. Cuenta con una fantástica zona de piscina con bar, jardines tropicales y seguridad las 24 horas del día, los 7 días de la semana. La comunidad está situada en una de las mejores playas de la zona. El apartamento dispone de una plaza de aparcamiento subterráneo y un trastero adicional en el sótano.
Este exquisito ático ha sido completamente renovado, con una distribución diáfana, un sofisticado diseño contemporáneo y electrodomésticos de alta gama, lo que lo convierte en una rareza en el mercado local.
Todas las habitaciones han sido cuidadosamente amuebladas por nuestro diseñador de interiores, con detalles de lujo como armarios a medida, duchas a ras de suelo, una bañera independiente, un sistema de sonido Bang Olufsen y una elegante chimenea moderna. La amplia terraza de la azotea ofrece unas vistas impresionantes y sin obstáculos del Mediterráneo e incluye zonas específicas para comer, relajarse y hacer ejercicio.
